010 テナント 2階
- 所在地
- 砺波市表町5-5
- 階数
- 2階
- 最適用途
- 店舗
- 賃料
- 月額131,780円(共益費・消費税含)
- 入居可能日
- 即入居可
| 敷金 | |
|---|---|
| 礼金 | |
| 共益費 | 賃料に含む |
| 駐車料金 |
物件詳細情報
| 土地 | |
|---|---|
| 地積 | |
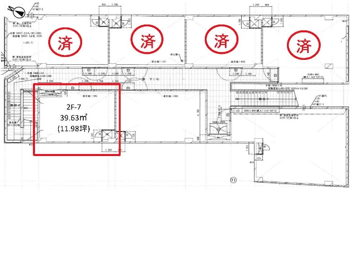
| 建物 | 39.63㎡(11.98坪) |
| 土地専有面積 | |
| 構造 | 鉄筋コンクリート 陸屋根2階建て |
設備
| 電気 | ○ | オール電化 | |
|---|---|---|---|
| 上水道 | ○ | 都市G | |
| 井戸 | LPG | ○ | |
| 下水道 | ○ | 車庫 | |
| 浄化槽 | 駐車 |
生活情報
| 小学校 | 出町小学校 |
|---|---|
| 中学校 | 出町中学校 |
【建築年月】平成14年5月
【保 証 金】646,920円(賃料6ヶ月分)
【賃料内訳】賃料107,820円 共益費11,980円 消費税11,980円(家賃応談可)
【問合せ先】リアールプランニング株式会社
住所:砺波市栄町3-2 大江ビル2F TEL:0763-55-6554



